Inspirasi Denah Rumah 5×8 yang Fungsional dan Estetis
Denah Rumah 5×8 – Apakah Anda memiliki lahan terbatas namun bermimpi memiliki rumah yang nyaman, fungsional, dan tetap estetis? Di tengah dinamika perkotaan yang semakin padat, kepemilikan lahan yang luas mungkin menjadi tantangan tersendiri. Namun, jangan biarkan keterbatasan ukuran menghalangi impian Anda memiliki hunian idaman.
Denah rumah ukuran 5×8 meter, meskipun seringkali dianggap menantang karena ukurannya yang mungil, sebenarnya menawarkan potensi besar untuk desain yang cerdas dan optimal.
Artikel ini hadir sebagai panduan komprehensif bagi Anda, para pencari inspirasi denah rumah di lahan sempit, yang ingin memaksimalkan setiap inci ruang.
Kami akan membawa Anda menjelajahi berbagai ide kreatif, tips ahli, dan contoh denah inovatif yang membuktikan bahwa rumah kecil pun bisa terasa lapang, efisien, dan indah. Mari temukan strategi terbaik untuk menciptakan hunian impian di lahan 5×8 Anda!
Mengapa Denah Rumah 5×8 Menjadi Pilihan Menarik?
Di tengah tantangan keterbatasan lahan, khususnya di area perkotaan yang padat, rumah dengan ukuran kompak seperti 5×8 meter justru menjadi solusi menarik. Popularitasnya bukan tanpa alasan; ada beberapa keunggulan signifikan yang membuatnya diminati:

Tantangan Lahan Perkotaan Adalah Peluang
Harga lahan di perkotaan terus meroket, membuat kepemilikan rumah di atas lahan luas menjadi impian yang sulit dijangkau banyak orang.
Denah rumah 5×8 meter hadir sebagai jawaban atas keterbatasan lahan dan anggaran, memungkinkan lebih banyak orang memiliki properti di lokasi strategis tanpa harus menguras seluruh tabungan. Ini adalah bukti bahwa ukuran bukan satu-satunya penentu nilai sebuah hunian.
Efisiensi Biaya yang Signifikan
Membangun rumah 5×8 secara otomatis berarti biaya pembangunan yang lebih rendah. Kebutuhan material seperti semen, bata, keramik, hingga atap akan jauh lebih sedikit dibandingkan rumah berukuran besar. Hal yang sama berlaku untuk biaya tenaga kerja.
Efisiensi ini bukan hanya menguntungkan di awal pembangunan, tetapi juga dalam jangka panjang terkait biaya perawatan dan operasional rumah sehari-hari.
Mendorong Desain Minimalis yang Efektif
Ukuran lahan yang terbatas justru mendorong kreativitas dalam desain. Denah rumah 5×8 hampir “memaksa” desainer dan pemilik rumah untuk berpikir secara minimalis: setiap ruang harus multifungsi, setiap sudut harus dimanfaatkan, dan setiap elemen harus memiliki tujuan.
Hasilnya? Desain yang ringkas, cerdas, dan bebas dari barang-barang tidak perlu, menciptakan hunian yang rapi dan efisien.
Cocok untuk Berbagai Segmen Penghuni
Fleksibilitas adalah kunci. Denah rumah 5×8 ideal untuk pasangan muda yang baru memulai hidup bersama, keluarga kecil dengan satu atau dua anak yang membutuhkan hunian efisien, atau bahkan sebagai unit sewa maupun investasi properti karena tingginya permintaan akan hunian kompak di lokasi strategis. Ukuran ini juga populer di kalangan individu yang menginginkan hunian praktis dan mudah dikelola.
Kemudahan Perawatan
Rumah yang lebih kecil secara logis berarti perawatan yang lebih mudah dan cepat. Anda tidak perlu menghabiskan banyak waktu dan tenaga untuk membersihkan atau merapikan.
Ini sangat cocok bagi mereka yang memiliki gaya hidup sibuk atau tidak ingin direpotkan dengan urusan rumah tangga yang rumit. Anda bisa lebih fokus pada kualitas hidup dan menikmati waktu luang.
Prinsip Penting dalam Merancang Denah Rumah 5×8
Merancang rumah di lahan 5×8 meter memang membutuhkan pendekatan yang cerdas dan strategis. Setiap keputusan desain akan sangat memengaruhi fungsionalitas dan kenyamanan penghuni. Berikut adalah prinsip-prinsip utama yang harus Anda pegang teguh:

Pemanfaatan Ruang Vertikal: Kunci Utama!
Dengan lebar dan panjang yang terbatas, memaksimalkan ruang vertikal adalah kunci mutlak untuk memenuhi kebutuhan ruang dasar. Hampir tidak mungkin memiliki rumah 5×8 yang fungsional hanya dengan satu lantai. Oleh karena itu:
- Rumah 2 Lantai/Lebih: Ini adalah solusi yang hampir wajib. Dengan membangun ke atas, Anda bisa memisahkan area privat (kamar tidur) dari area publik (ruang keluarga, dapur), serta menambahkan kamar tidur atau ruang tambahan lainnya tanpa memakan footprint lahan.
- Mezzanine: Pertimbangkan penambahan mezzanine. Area ini bisa menjadi ruang multifungsi yang berharga, seperti area kerja yang tenang, sudut baca yang nyaman, atau bahkan penyimpanan tambahan yang tidak terlihat.
Tata Letak Open Plan
Konsep tata letak open plan sangat efektif untuk membuat rumah 5×8 terasa lebih luas dan lapang.
- Menggabungkan Ruang: Dengan meniadakan sekat permanen antara ruang keluarga, ruang makan, dan dapur, Anda menciptakan satu kesatuan ruang yang luas dan fleksibel. Ini tidak hanya memberikan kesan lega, tetapi juga mempromosikan interaksi antar anggota keluarga.
- Meminimalkan Sekat Permanen: Gunakan perabot sebagai pembatas visual, atau pertimbangkan partisi geser atau folding door yang bisa dibuka tutup sesuai kebutuhan.
Pencahayaan & Ventilasi Alami
Rumah kecil bisa terasa pengap jika tidak memiliki sirkulasi udara dan pencahayaan yang baik.
- Jendela dan Pintu Kaca: Maksimalkan masuknya cahaya matahari dan sirkulasi udara dengan menggunakan jendela dan pintu kaca berukuran besar, terutama di sisi-sisi yang memungkinkan.
- Inner Courtyard / Skylight: Jika rumah Anda diapit bangunan lain, pertimbangkan membuat inner courtyard kecil di tengah rumah atau memasang skylight (jendela atap) untuk membawa cahaya alami ke bagian dalam.
- Ventilasi Silang (Cross-Ventilation): Pastikan ada bukaan pada dinding yang saling berhadapan untuk menciptakan aliran udara silang yang efisien, menjaga rumah tetap sejuk dan segar.
Furnitur Multifungsi
Setiap perabot di rumah 5×8 harus memiliki tujuan ganda.
- Sofa Bed, Meja Lipat, Tempat Tidur Lipat (Murphy Bed): Ini adalah investasi cerdas. Sofa bisa berubah menjadi tempat tidur tamu, meja makan bisa dilipat saat tidak digunakan, dan tempat tidur bisa disembunyikan di dinding untuk mengosongkan ruang di siang hari.
- Lemari Tanam dan Penyimpanan Vertikal: Manfaatkan ketinggian dinding untuk lemari tanam yang rapi atau rak-rak vertikal. Ini mengurangi kekacauan dan memaksimalkan ruang penyimpanan tanpa memakan area lantai.
Pilihan Warna dan Material
Strategi warna dan material dapat memberikan ilusi ruang yang lebih besar.
- Warna Cerah: Gunakan warna cerah seperti putih, krem, atau abu-abu muda pada dinding dan langit-langit. Warna-warna ini memantulkan cahaya, membuat ruangan terasa lebih lapang dan terang.
- Material Ringan: Pilih material ringan seperti gypsum untuk partisi, atau kaca untuk sekat kamar mandi. Material ini memberikan kesan modern, terbuka, dan tidak membebani tampilan ruangan secara visual.
Dengan menerapkan prinsip-prinsip ini, Anda akan selangkah lebih dekat untuk mengubah lahan 5×8 yang mungil menjadi hunian yang luar biasa fungsional dan estetis.
Inspirasi Denah Rumah 5×8: Ide-Ide Kreatif
Setelah memahami prinsip-prinsip dasar, mari kita lihat bagaimana ide-ide ini bisa diterjemahkan ke dalam inspirasi denah rumah 5×8 yang nyata. Desain-desain ini membuktikan bahwa ukuran kecil tidak berarti batasan pada fungsionalitas dan estetika.

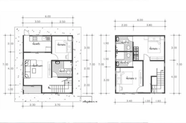
Denah 2 Lantai Optimal: Maksimalkan Setiap Sudut

Untuk lahan 5×8, konsep dua lantai adalah pilihan yang paling umum dan efektif untuk memenuhi kebutuhan ruang dasar.
- Lantai Bawah: Bagian ini biasanya dirancang sebagai area publik atau semi-publik. Anda bisa memiliki ruang tamu mini yang menyatu dengan dapur kompak dan area makan. Penempatan satu kamar mandi di lantai ini sangat fungsional untuk tamu dan penghuni lantai bawah. Tangga menuju lantai atas biasanya dirancang ramping atau melayang untuk menghemat ruang dan memberikan kesan modern.
- Lantai Atas: Didedikasikan untuk area privat. Umumnya akan ada dua kamar tidur; satu untuk kamar tidur utama dan satu lagi untuk anak atau tamu. Satu kamar mandi tambahan juga ditempatkan di lantai ini. Anda mungkin juga bisa menambahkan area fleksibel kecil di koridor atau dekat tangga yang bisa difungsikan sebagai ruang baca, area kerja minimalis, atau bahkan lemari linen.
- Penekanan: Desain ini fokus pada efisiensi akses antarruang dan privasi kamar tidur yang terpisah di lantai atas.
Denah dengan Konsep Studio/Minimalis: Fleksibilitas Tanpa Batas

Jika Anda adalah individu atau pasangan tanpa anak yang mengedepankan efisiensi dan fleksibilitas, denah bergaya studio bisa sangat menarik.
- Fokus: Konsep ini menitikberatkan pada ruang terbuka total di lantai bawah, di mana ruang tamu, dapur, dan kamar tidur utama menyatu tanpa sekat, kecuali untuk kamar mandi.
- Inovasi: Untuk privasi tidur, tempat tidur bisa ditempatkan di area mezzanine atau di lantai atas yang diakses dengan tangga vertikal atau tangga lipat yang bisa disembunyikan saat tidak digunakan. Ini menciptakan kesan loteng modern.
- Cocok untuk: Individu, pasangan muda, atau sebagai properti sewaan yang modern dan efisien.
Denah dengan Taman Vertikal/Area Hijau Kecil: Kesegaran dalam Keterbatasan

Meskipun lahan terbatas, bukan berarti Anda tidak bisa membawa nuansa alam ke dalam rumah.
- Mengintegrasikan Tanaman: Manfaatkan dinding kosong di dalam atau luar rumah untuk taman vertikal (dinding hijau). Atau, letakkan pot-pot tanaman gantung dan tanaman dalam pot di sudut-sudut yang memungkinkan.
- Menciptakan Kesan Segar: Tanaman tidak hanya mempercantik ruangan tetapi juga membantu meningkatkan kualitas udara dan menciptakan kesan segar serta nyaman di lahan terbatas Anda. Bahkan inner courtyard berukuran 1×1 meter dengan kerikil dan satu tanaman tinggi bisa membuat perbedaan besar.
Denah dengan Maksimasi Penyimpanan: Setiap Sudut Berharga

Di rumah mungil, penyimpanan adalah segalanya. Setiap area yang tidak terpakai adalah potensi yang terbuang.
- Tangga dengan Laci Penyimpanan: Rancang tangga Anda bukan hanya sebagai akses antar lantai, tetapi juga sebagai unit penyimpanan multifungsi. Setiap anak tangga bisa berupa laci, atau area di bawah tangga bisa diubah menjadi lemari penyimpanan tersembunyi.
- Dinding Multifungsi: Manfaatkan dinding sebagai unit penyimpanan terintegrasi dengan rak buku built-in, lemari pakaian tanam, atau bahkan meja lipat yang bisa keluar dari dinding.
- Area Bawah Tempat Tidur: Pilih ranjang dengan laci besar di bawahnya atau desain platform tidur yang bagian bawahnya bisa diakses sebagai ruang penyimpanan ekstra untuk barang-barang jarang pakai.
Dengan menggabungkan berbagai ide ini, atau memilih salah satu konsep utama dan memodifikasinya, Anda akan menemukan bahwa denah rumah 5×8 memiliki potensi tak terbatas untuk menjadi hunian yang sangat fungsional, estetis, dan nyaman bagi Anda.
Daftar Harga Layanan Kami
Harga jasa desain rumah dan bangunan yang kami berikan adalah harga termurah untuk saat ini. Karena kami ingin semua lapisan masyarakat dapat memiliki hunian yang nyaman dan aman. Juga sebagai syarat untuk pengajuan IMB atau PBG. Nikmati promo diskon 50%. Bayangkan berapa uang yang bisa Anda hemat dengan memanfaatkan promo ini. Dan Anda tidak akan menemukan dimanapun harga promo Rp 40.000/M2.

